ハレクラニ 賃貸マンション物件案内
1階部分にクリニック、薬局、コインランドリー、カフェ、及び当社事務所が入居しています。
工事施工の様子はこちら
物件概要
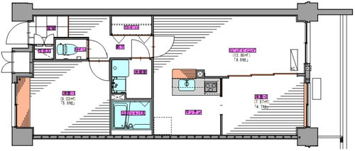
| 2LDK | |
| 賃貸料 | 85,000円(平均) |
| 共益費 | 6,000円 |
| 敷金 | 賃料の1ヶ月分 |
| 礼金 | 賃料の1ヶ月分 |
| 仲介手数料 | 賃料の1ヶ月分 |
| 所在地 | 神奈川県秦野市北矢名1309番地 |
| 契約期間 | 2年間 |
| 建物構造 | 鉄筋コンクリート造 地上4階建ての2〜4階部分 |
| 築年数 | 新築 2010年3月 |
| 間取内訳 | LD(8.6畳) K(3.6畳) 洋1(6.2畳) 洋2(4.7畳) |
| 外装仕上 | タイル貼り、吹付タイル、御影石貼り |
| 内装仕上 | フローリング貼り、ビニールクロス貼り |
| エントランス | 大理石貼り、塗装仕上 |
| 設備・仕様 | エアコン各室1基実装・インターネットNTTフレッツ光 3口ガスコンロ付システムキッチン オートロック/防犯カメラ+録画装置・基本照明器具 防水パン ・ シャンプードレッサー シャンプー機能付暖房便座 ・ 玄関ダブルキー バルコニー物干し金物 ・ ダイヤル式集合ポスト 宅配BOX ・ 専用ごみ置き場 ・ 屋根付駐輪場 屋根付バイク置き場 ・ 室名札 ・ Wカーテンレール 電話配管(CD管+配線) ・ LAN配管 カラーモニター付ハンズフリーフォン BS/110°CSアンテナ 非常時警備会社対応、エントランスホールに防犯カメラ設置 |
| 入居条件 | ペット不可 |
| 1K | |
| 賃貸料 | 61,000円(平均) |
| 共益費 | 4,000円 |
| 敷金 | 賃料の1ヶ月分 |
| 礼金 | 賃料の1ヶ月分 |
| 仲介手数料 | 賃料の1ヶ月分 |
| 所在地 | 神奈川県秦野市北矢名1309番地 |
| 契約期間 | 2年間 |
| 建物構造 | 鉄筋コンクリート造 地上4階建ての2〜4階部分 |
| 築年数 | 新築 2010年3月 |
| 間取内訳 | 洋(10.9畳) K(1.5畳) |
| 外装仕上 | タイル貼り、吹付タイル、御影石貼り |
| 内装仕上 | フローリング貼り、ビニールクロス貼り |
| エントランス | 大理石貼り、塗装仕上 |
| 設備・仕様 | エアコン各室1基実装・インターネットNTTフレッツ光 1口ガスコンロ付システムキッチン オートロック/防犯カメラ+録画装置・基本照明器具 防水パン ・ シャンプードレッサー シャンプー機能付暖房便座 ・ 玄関ダブルキー バルコニー物干し金物 ・ ダイヤル式集合ポスト 宅配BOX ・ 専用ごみ置き場 ・ 屋根付駐輪場 屋根付バイク置き場 ・ 室名札 ・ Wカーテンレール 電話配管(CD管+配線) ・ LAN配管 カラーモニター付ハンズフリーフォン BS/110°CSアンテナ 非常時警備会社対応、エントランスホールに防犯カメラ設置 |
| 入居条件 | ペット不可 |




